Назовите оператору контакт центра при звонке ваш промокод:    

Безопасная аренда

Подробнее

Онлайн просмотры и договор с цифровой подписью

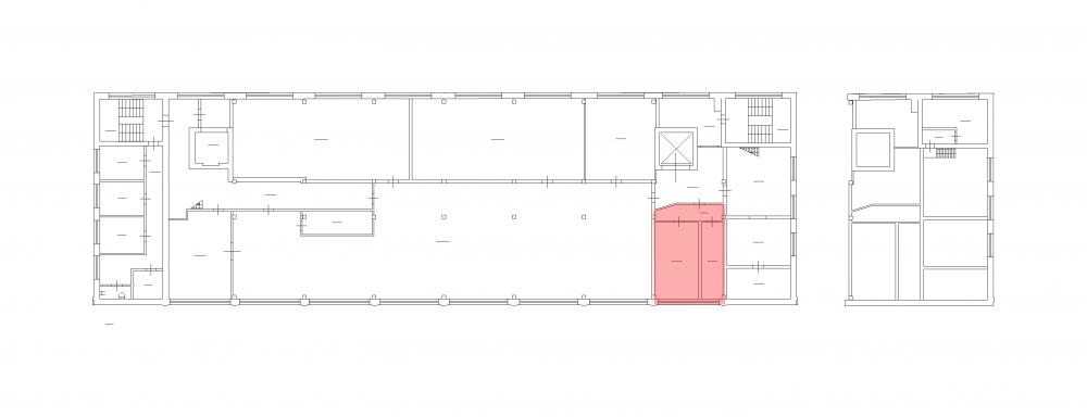
Помещение
Этаж 3
Площадь 52.6 м2
Ставка 840 руб./м2
Характеристики
Безопасность
Охрана Круглосуточная
Коммуникации
Телефон есть
Интернет оптоволокно
В арендную плату входит
  • Профессиональное управление
  • НДС
Оплачивается отдельно
  • Клининг
План помещения
Описание
В Кировском районе сдается в аренду небольшой ТЁПЛЫЙ СКЛАД площадью 52.6 кв. м

ИНЖЕНЕРНОЕ ОБЕСПЕЧЕНИЕ: выделенная электрическая мощность, пожарная сигнализация, отопление, освещение.
Блок расположен на 3-м ЭТАЖЕ здания на ул. Швецова, д. 38.
Есть грузовой лифт г/п 2 т (2 х 1,9 х 2,5 м).
Кабинетная ПЛАНИРОВКА.

Действует система СКУД.
Проход осуществляется по электронным КАРТАМ ДОСТУПА.

Территория находится под круглосуточной ОХРАНОЙ.
Рядом есть МАГАЗИНЫ, КАФЕ.
Ближайшая станция МЕТРО - "Нарвская".
+7 (812) 292-47-03
Перезвоните мне
Хотите посмотреть? Покажем вам это помещение и несколько похожих
Запишитесь на просмотр
Вас также может заинтересовать
52.7 м2
45 849 руб
52.5 м2
35 280 руб