Назовите оператору контакт центра при звонке ваш промокод:    

Безопасная аренда

Подробнее

Онлайн просмотры и договор с цифровой подписью

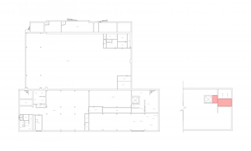
Помещение
Этаж антресоль
Площадь 28.1 м2
Ставка 839 руб./м2
Характеристики
Безопасность
Охрана Круглосуточная
Коммуникации
Телефон есть
Интернет оптоволокно
В арендную плату входит
  • Профессиональное управление
  • НДС
Оплачивается отдельно
  • Клининг
План помещения
Описание
Собственник предлагает в аренду помещение под творческую студию в Кировском районе города.

Площадь помещения - 28,1 кв. м, кабинетная планировка.
Оснащение: цифровая телефония и высокоскоростной интернет, противопожарная система сигнализации.

Охрана 24 часа.
Возможен круглосуточный режим работы.

Расположение: ул. Швецова, дом 38.
+7 (812) 292-47-03
Перезвоните мне
Хотите посмотреть? Покажем вам это помещение и несколько похожих
Запишитесь на просмотр
Вас также может заинтересовать
28.8 м2
23 587.2 руб
27.9 м2
22 292.1 руб