Назовите оператору контакт центра при звонке ваш промокод:    

Безопасная аренда

Подробнее

Онлайн просмотры и договор с цифровой подписью

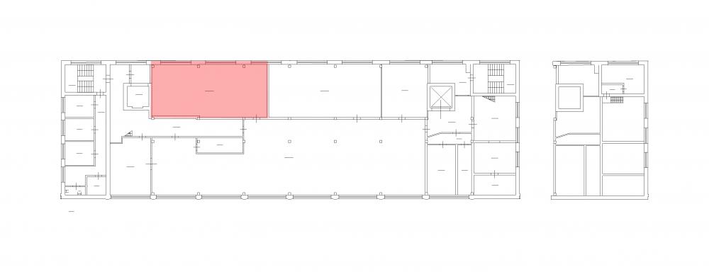
Помещение
Этаж 3
Площадь 115.8 м2
Ставка 849 руб./м2
Характеристики
Безопасность
Охрана Круглосуточная
Коммуникации
Телефон есть
Интернет оптоволокно
В арендную плату входит
  • Профессиональное управление
  • НДС
Оплачивается отдельно
  • Клининг
План помещения
Описание
Аренда помещения под Склад техники в Кировском районе.
Общий метраж 115,8 кв. м.

Адрес объекта: ул. Швецова, д. 38.
Ближайшие ст. м. "Нарвская" и "Балтийская".

Помещение на 3 этаж здания.
Есть Грузовой лифт г/п 2 тонны, 2,0*1,9*2,5.

Высота потолков 4,48 м, пол -  бетонный. стены - бетонные окрашенные.
В помещение установлены датчики пожарной безопасности.

Ведется круглосуточная охрана, проход осуществляется по электронным картам доступа.
Возможен круглосуточный режим работы.
+7 (812) 292-47-03
Перезвоните мне
Хотите посмотреть? Покажем вам это помещение и несколько похожих
Запишитесь на просмотр
Вас также может заинтересовать
115.4 м2
105 014 руб
115.4 м2
103 744.6 руб