Назовите оператору контакт центра при звонке ваш промокод:    

Безопасная аренда

Подробнее

Онлайн просмотры и договор с цифровой подписью

Помещение
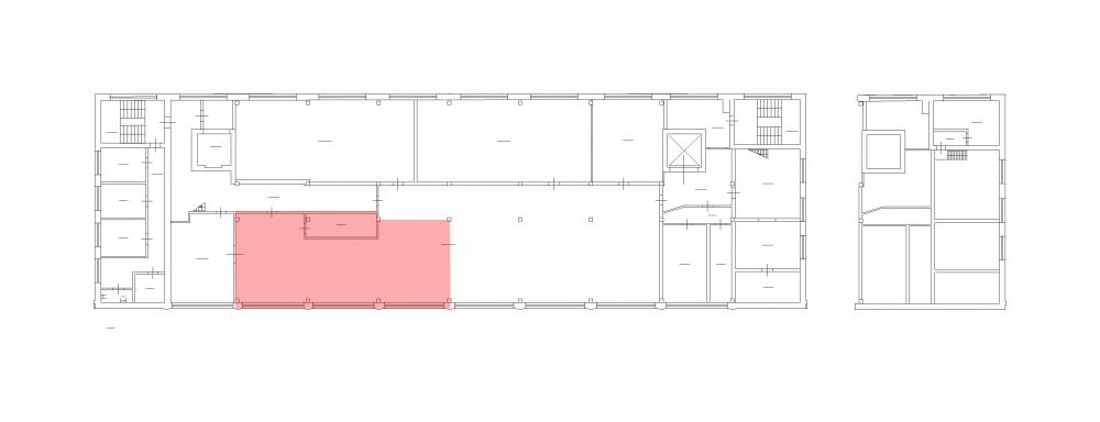
Этаж 3
Площадь 145.7 м2
Ставка 799 руб./м2
Характеристики
Безопасность
Охрана Круглосуточная
Коммуникации
Телефон есть
Интернет оптоволокно
В арендную плату входит
  • Профессиональное управление
  • НДС
Оплачивается отдельно
  • Клининг
План помещения
Описание
Предлагается в аренду помещение под столярную мастерскую.
Кировский район, метро Нарвская, улица Швецова, дом 38, 3 этаж.

Площадь помещения- 145,7 кв. м.
Полы бетонные.
Потолки- 4,3 м.

На этаж идет грузовой лифт г/п 2 тонны.
Из коридора в помещение ведут две противопожарные двери.
С/у на этаже.

Оснащение:
*Отопление.
*Освещение.
*Пожарная сигнализация.

Коммуникации:
*Интернет.
*Цифровая телефония.

Возможно подключить интернет.
Осуществляется круглосуточная охрана.
+7 (812) 292-47-03
Перезвоните мне
Хотите посмотреть? Покажем вам это помещение и несколько похожих
Запишитесь на просмотр
Вас также может заинтересовать
145.3 м2
108 539.1 руб
144.9 м2
105 632.1 руб