Назовите оператору контакт центра при звонке ваш промокод:    

Безопасная аренда

Подробнее

Онлайн просмотры и договор с цифровой подписью

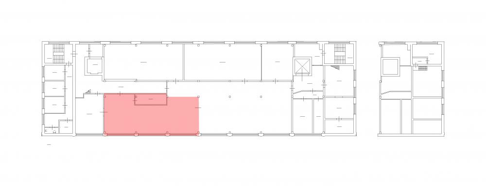
Помещение
Этаж 3
Площадь 144.9 м2
Ставка 729 руб./м2
Характеристики
Безопасность
Охрана Круглосуточная
Коммуникации
Телефон есть
Интернет оптоволокно
В арендную плату входит
  • Профессиональное управление
  • НДС
Оплачивается отдельно
  • Клининг
План помещения
Описание
Современное производственное помещение в Кировском районе.
Площадь: 144,9 кв. м.
Метро: станция "Нарвская".
Этаж: третий.

Технические особенности:
*Высота помещения- 4,3 метра.
*Пол- качественное бетонное покрытие.
*Грузовой лифт- грузоподъёмность до 2 тонн.
*Коммуникации- все необходимые системы.

Преимущества объекта:
*Планировка- оптимально продумана для производственных процессов.
*Удобство эксплуатации- наличие грузового лифта.
*Функциональность- отвечает всем современным требованиям.

Система безопасности:
*Контроль доступа- современная пропускная система.
*Защита- полное соответствие нормативам безопасности.
*Охрана- круглосуточный мониторинг.

Оптимальные варианты использования:
*Производственные цеха различного профиля.
*Сборочные линии средней мощности.
*Механические мастерские.
*Производственные площадки для мелкосерийного выпуска.
*Технологические линии для обработки материалов.

Дополнительные плюсы:
*Транспортная доступность- удобный подъезд.
*Логистические возможности- эффективная организация грузопотоков.
*Гибкость использования- возможность адаптации под различные задачи.

Наши специалисты готовы предоставить детальную информацию об объекте, организовать просмотр в удобное для вас время и обсудить условия аренды.
+7 (812) 292-47-03
Перезвоните мне
Хотите посмотреть? Покажем вам это помещение и несколько похожих
Запишитесь на просмотр
Вас также может заинтересовать
145.7 м2
116 414.3 руб
145.3 м2
108 539.1 руб