Назовите оператору контакт центра при звонке ваш промокод:    

Безопасная аренда

Подробнее

Онлайн просмотры и договор с цифровой подписью

Помещение
Этаж 5
Площадь 83.5 м2
Ставка 750 руб./м2
Характеристики
Безопасность
Охрана Круглосуточная
Коммуникации
Телефон есть
Интернет оптоволокно
В арендную плату входит
  • Профессиональное управление
  • НДС
Оплачивается отдельно
  • Клининг
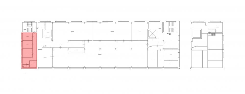
План помещения
Описание
Производственное помещение 83,5 кв. м для ювелирной мастерской.
5-й этаж здания.
Светлые кабинеты с очень хорошим освещением.

Возможно размещение сразу нескольких мастеров: площадь поделена на кабинеты.
Также возможно обустроить отдельный кабинет для размещения сейфа и хранения материалов.
Огромным плюсом является наличие собственной моечной зоны.

Также помещение подходит для обучения ювелирному делу.
Есть грузовой лифт грузоподъемностью 2 тонны (2 х 1,9 х 2,5 м).
Проведены необходимые инженерные коммуникации: освещение, отопление, выделенная электроэнергия, ХВС, водоотведение.
Отделка: светлые стены, линолеум на полу.

Круглосуточная охрана, ведётся видеонаблюдение.

Ближайшая станция метро "Нарвская".
В пешей доступности остановки наземного транспорта.
Удобный съезд на улицу Швецова с проспекта Стачек, а также с улицы Маршала Говорова.
В пешей доступности есть столовая.
+7 (812) 292-47-03
Перезвоните мне
Хотите посмотреть? Покажем вам это помещение и несколько похожих
Запишитесь на просмотр
Вас также может заинтересовать
85.5 м2
88 920 руб
89.6 м2
83 328 руб
89.5 м2
80 460.5 руб
85.5 м2
63 184.5 руб
84.1 м2
56 515.2 руб