Назовите оператору контакт центра при звонке ваш промокод:    

Безопасная аренда

Подробнее

Онлайн просмотры и договор с цифровой подписью

Помещение
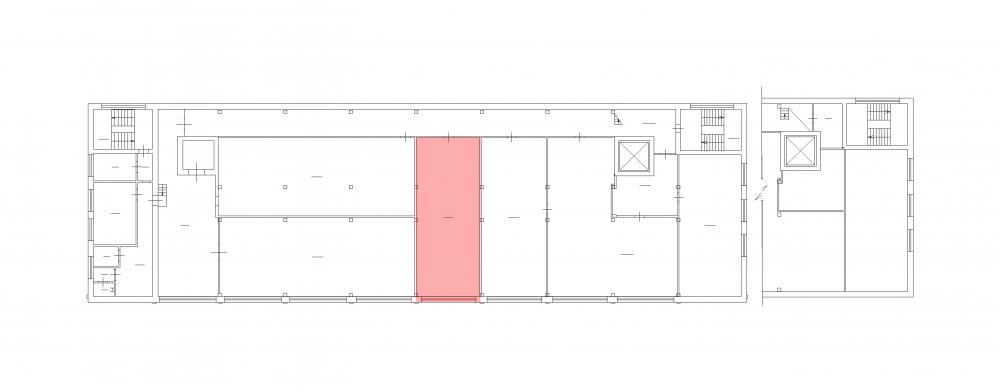
Этаж 3
Площадь 89.5 м2
Ставка 899 руб./м2
Характеристики
Безопасность
Охрана Круглосуточная
Коммуникации
Телефон есть
Интернет оптоволокно
В арендную плату входит
  • Профессиональное управление
  • НДС
Оплачивается отдельно
  • Клининг
План помещения
Описание
В аренду предлагается помещение общей площадью 89.5 кв. м, которые подойдёт для небольшой СТОЛЯРНОЙ МАСТЕРСКОЙ.

Проведены необходимые ИНЖЕНЕРНЫЕ КОММУНИКАЦИИ: выделенная электроэнергия, освещение, отопление.
2-й ЭТАЖ здания на ул. Швецова, д.38.
На этаже есть грузовой лифт.

На объекте ведётся круглосуточная ОХРАНА с видеонаблюдением и действует система контроля и управления доступом.

Рядом - выезд на ЗСД, благодаря которому из района можно быстро выбраться, в шаговой доступности станция МЕТРО "Нарвская".
+7 (812) 292-47-03
Перезвоните мне
Хотите посмотреть? Покажем вам это помещение и несколько похожих
Запишитесь на просмотр
Вас также может заинтересовать
85.5 м2
88 920 руб
89.6 м2
83 328 руб
85.5 м2
63 184.5 руб
83.5 м2
62 625 руб
84.1 м2
56 515.2 руб