Назовите оператору контакт центра при звонке ваш промокод:    

Безопасная аренда

Подробнее

Онлайн просмотры и договор с цифровой подписью

Помещение
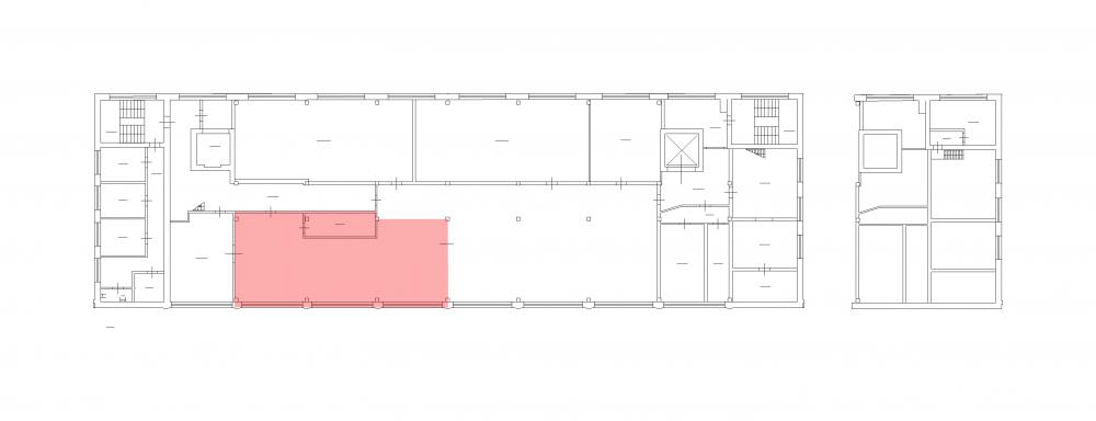
Этаж 3
Площадь 144.6 м2
Ставка 826 руб./м2
Характеристики
Безопасность
Охрана Круглосуточная
Коммуникации
Телефон есть
Интернет оптоволокно
В арендную плату входит
  • Профессиональное управление
  • НДС
Оплачивается отдельно
  • Клининг
План помещения
Описание
Складское помещение для хранения автозапчастей и комплектующих.

Район: Кировский район Санкт-Петербурга.
Площадь помещения: 144,6 кв. м.
Адрес: ул. Швецова, дом 38.
Этаж: 3.

Технические характеристики:
*Высота потолков: 4,3 м.
*Напольное покрытие: бетонные полы.

Коммуникации:
*Централизованное отопление.
*Освещение.
*Электроснабжение.

Оснащение:
*Грузовой лифт (грузоподъемность 2 тонны).
*Система контроля доступа.
*Круглосуточная охрана.

Преимущества помещения:
*Расположение- удобный доступ к метро "Нарвская".
*Готовность к эксплуатации- помещение свободно от оборудования.
*Безопасность- круглосуточная охрана и система контроля доступа.
*Функциональность- возможность организации круглосуточной работы.
*Пространство- оптимальная высота потолков для размещения стеллажей.

Организация хранения:
*Размещение стеллажей.
*Система адресного хранения.
*Организация зон хранения.

Условия работы:
*Комфортная температура.
*Достаточное освещение.
*Возможность установки дополнительного оборудования.

Дополнительные преимущества:
*Транспортная доступность- удобный выезд из района.
*Инфраструктура- близость к основным магистралям
*Правовой статус- аренда от собственника.
*Надежность- помещение находится в хорошем состоянии.

Помещение идеально подходит для:
*Хранения автозапчастей.
*Складского хранения комплектующих.
*Организации распределительного центра.
*Работы с запасными частями.
*Складирования автомобильных материалов.

Готовы рассмотреть индивидуальные условия аренды и обсудить возможности адаптации помещения под ваши конкретные потребности.
+7 (812) 292-47-03
Перезвоните мне
Хотите посмотреть? Покажем вам это помещение и несколько похожих
Запишитесь на просмотр
Вас также может заинтересовать
145.3 м2
105 923.7 руб
115.8 м2
98 314.2 руб