Назовите оператору контакт центра при звонке ваш промокод:    

Безопасная аренда

Подробнее

Онлайн просмотры и договор с цифровой подписью

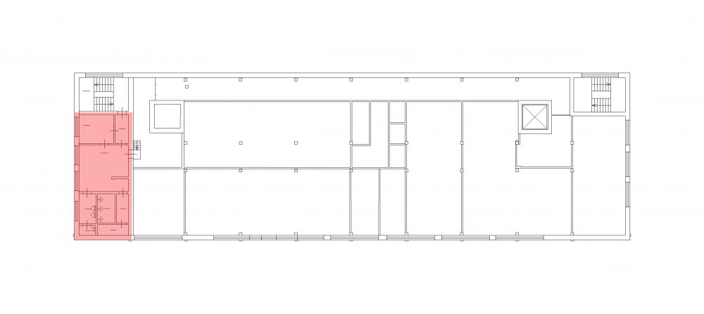
Помещение
Этаж 4
Площадь 86.2 м2
Ставка 1 040 руб./м2
Характеристики
Безопасность
Охрана Круглосуточная
Коммуникации
Телефон есть
Интернет оптоволокно
В арендную плату входит
  • Профессиональное управление
  • НДС
Оплачивается отдельно
  • Клининг
План помещения
Описание
Аренда складского блока площадью 86.2 кв. м от собственника.

Расположен на 4 этаже здания по адресу: ул. Швецова, д. 38.
Потолки 2,3 м.  
На стенах плитка, на полу линолеум.

В наличии: освещение, отопление, ХВС, водоотведение, пожарная сигнализация.

Охрана осуществляется круглосуточно.
Возможно работать круглосуточно.
+7 (812) 292-47-03
Перезвоните мне
Хотите посмотреть? Покажем вам это помещение и несколько похожих
Запишитесь на просмотр
Вас также может заинтересовать
86 м2
87 720 руб
90.2 м2
85 690 руб
89.3 м2
80 280.7 руб
84.2 м2
57 256 руб