Назовите оператору контакт центра при звонке ваш промокод:    

Безопасная аренда

Подробнее

Онлайн просмотры и договор с цифровой подписью

Помещение
Этаж 4
Площадь 86 м2
Ставка 1 020 руб./м2
Характеристики
Безопасность
Охрана Круглосуточная
Коммуникации
Телефон есть
Интернет оптоволокно
В арендную плату входит
  • Профессиональное управление
  • НДС
Оплачивается отдельно
  • Клининг
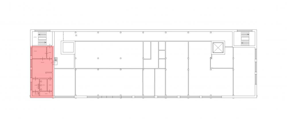
План помещения
Описание
Аренда блока площадью 86 кв. м под ЧИСТЫЙ СКЛАД на четвёртом этаже здания по адресу: ул. Швецова, д. 38.

Отделка: на стенах плитка, напольное покрытие - линолеум.
Высота потолка до перекрытия 2.31 м.

Инженерное оснащение: пожарная сигнализация, выделенная электроэнергия, освещение, отопление, ХВС, водоотведение.

Территория находится под круглосуточной охраной, действует пропускная система.
Офисно-складской комплекс "Нарвский" находится в Кировском районе.
+7 (812) 292-47-03
Перезвоните мне
Хотите посмотреть? Покажем вам это помещение и несколько похожих
Запишитесь на просмотр
Вас также может заинтересовать
86.2 м2
89 648 руб
90.2 м2
85 690 руб
89.3 м2
80 280.7 руб
84.2 м2
57 256 руб