Назовите оператору контакт центра при звонке ваш промокод:    

Безопасная аренда

Подробнее

Онлайн просмотры и договор с цифровой подписью

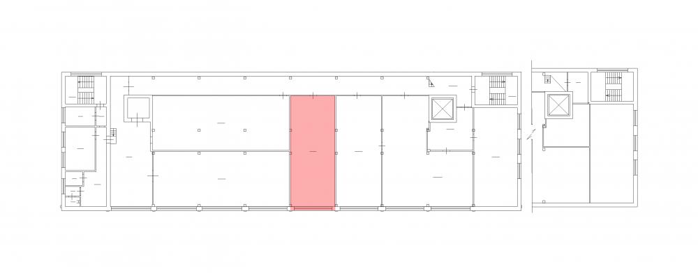
Помещение
Этаж 2
Площадь 89.3 м2
Ставка 899 руб./м2
Характеристики
Безопасность
Охрана Круглосуточная
Коммуникации
Телефон есть
Интернет оптоволокно
В арендную плату входит
  • Профессиональное управление
  • НДС
Оплачивается отдельно
  • Клининг
План помещения
Описание
Тёплый СКЛАД площадью 89.3 кв. м сдаётся в аренду у станции метро "Нарвская".

2-й этаж здания на ул. Швецова, д.38.
На этаже есть грузовой лифт.

ОСНАЩЕНИЕ: отопление, освещение, пожарная сигнализация, выделенная электроэнергия.

Действует система СКУД.
Проход осуществляется по МАГНИТНЫМ КАРТАМ.
ОХРАНА 24 часа.
+7 (812) 292-47-03
Перезвоните мне
Хотите посмотреть? Покажем вам это помещение и несколько похожих
Запишитесь на просмотр
Вас также может заинтересовать
86.2 м2
89 648 руб
86 м2
87 720 руб
90.2 м2
85 690 руб
84.2 м2
57 256 руб